moderne Doppelhaushälfte in ruhiger Lage von Zerbst
Haus und Grundstück:
Individuell geplante Doppelhaushälfte mit Wohlfühlatmosphäre in ruhiger Randlage von Zerbst
Verkauft wird eine Hälfte eines geräumigen Doppelhauses, welches 2009 in Massivbauweise errichtet wurde.
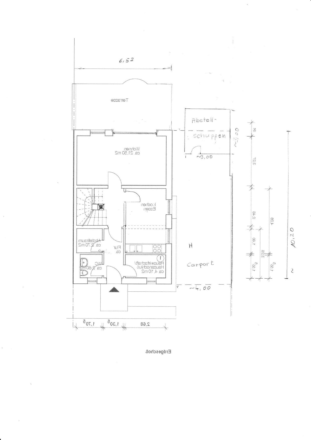
In einer ruhigen Seitenstraße, einer gefragten Wohngegend im Norden von Zerbst, befindet sich dieses schöne Haus. Ca. 110 m² Fläche bieten ausreichend Platz zum Wohlfühlen und Leben (Wohnzimmer + 4 Zimmer, 1 Bad mit Wanne und Dusche, 1 Gäste-WC, Treppenaufgang, Küche, Flur, Hauswirtschaftsraum) im Haus.
Privatsphäre und Ruhe. Ein schöner kleiner Vorgarten begrüßt Sie und Ihre Gäste nach Betreten des Grundstückes. Der umzäunte Garten mit Wiese und Blumenrabatten im hinteren Bereich lädt zur Entspannung ein. Das Grundstück besitzt mit ca. 367 m² eine überschaubare und doch großzügig wirkende Größe.
in´s Haus geschaut:
Die ca. 110 m² Fläche für das Wohnen erstrecken sich auf drei Etagen. Im Erdgeschoss gelegen sind, vom Hauseingang kommend, der Flur, das Gäste-WC, der Hauswirtschaftsraum mit Waschmaschinenanschluss und der Heizanlagenraum mit Warmwasserspeicher. Von der Küche erreichen sie auch das Carport und vom Wohnzimmer aus gelangen sie über die überdachte Terrasse in den Garten. Der Blick vom Wohnzimmer aus in den ruhigen und von außen nicht einsehbaren Garten ist einfach herrlich.
Besonders wohnlich und angenehm wirkt das Haus insgesamt durch die Holzbalkendecken und die Fußböden in warmen Farben.
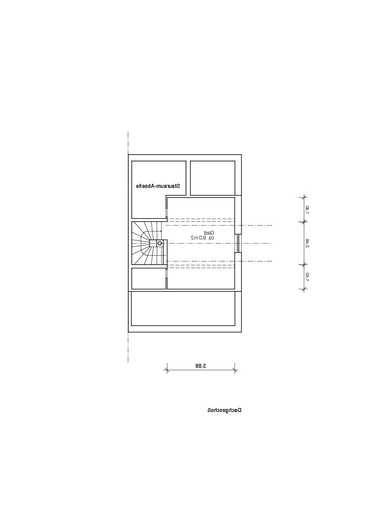
Das Treppenhaus und die Wohnräume im Dachgeschoss sind mit textilem Belag ausgelegt. Alle 3 Wohnräume und das große Bad mit Badewanne und Dusche sind praktisch geschnitten, geräumig und hell. Bodentiefe Fenster lassen viel Licht in die Zimmer. Auch der Spitzboden ist ausgebaut. Das kleine gemütliche Zimmer bietet neben einem Ausblick zur St. Nikolai Kirche auch viel Stauraum in den Einbauschränken.
Zum Schutz der Privatsphäre werden hier nicht alle Räume mit Bildern dargestellt. Die dargestellten Grundrisse sind rein schematisch (Räume in der DHH nicht genau identisch)
Heizung Carport Brunnen Daten:
Beheizt wird das Haus mit einer modernen Gasheizung (Flüssiggas). Die Fußbodenheizung gibt für jeden Raum wohlige Wärme ab.
Die Autos stehen geschützt im geräumigen Carport. Alle Gartengeräte, die Fahrräder und vieles mehr sind im Abstellschuppen gut untergebracht. Der Pflegebedarf von Wiese und Blumenbeeten im Garten ist moderat. Zur Bewässerung kann der Brunnen, welcher sich im Vorgarten befindet, genutzt werden. Ein eigenes Hauswasserwerk steht dafür bereit.
Daten:
Kunststofffenster 2-fach verglast mit Rollläden
Haustür Kunststoff
Innentüren Buchenoptik, teils mit Verglasung
Bodenbelag: Laminat, Fliesen, textiler Bodenbelag
HWR mit Waschmaschinenanschluss
Brunnen mit HWW
Heizung zentral
Solaranlage auf dem Dach derzeit ohne Funktion
Gasheizung Rapido Econpact 15 3,5 – 15 kW, WW-Speicher ca. 800 Liter
Flüssiggastank (Miete) 2700 Liter
Trinkwasser: zentral
Abwasser: zentral
Wem Neubau zur jetzigen Zeit zu ungewiss ist oder wem einfach die Zeit dafür fehlt, wer sich trotzdem wünscht, im zeitgemäßen Eigentum mit der Familie zu wohnen, für alle jene ist dieses Haus ideal.
Bilder zeigen mehr, als Worte. Doch eine Besichtigung und das eigene Empfinden beim Betreten des Hauses sind unerlässlich. Wenn Sie Ihre finanziellen Belange geklärt haben, sind Sie herzlich eingeladen, dieses Haus persönlich anzuschauen.
Lagebeschreibung:
Das 2009 erbaute Haus befindet sich in einer gewachsenen und ruhigen Siedlungslage am Rande von Zerbst, außerhalb der Stadtmauer (kein Sanierungsgebiet). Ein Supermarkt und ein Fleischerladen sind in fußläufiger Nähe. Im nahe gelegenen Stadtzentrum sind alle Geschäfte des täglichen Bedarfes, Banken, etliche Freizeiteinrichtungen, die Fußgängerzone in wenigen Minuten zu erreichen.
Zerbst ist eine grüne Stadt. Etliche Parkanlagen säumen die Stadtmauer, der nahe Schlosspark mit dem Schloss und der Stadthalle laden zum Verweilen ein. Die Umgebung bietet für Naturliebhaber viele Möglichkeiten der Freizeitgestaltung.
Zerbst/Anhalt gehört zum Landkreis Anhalt – Bitterfeld. Zerbst/Anhalt. Mehr denn je hat Zerbst/Anhalt aufgrund zahlreicher Investitionen in den letzten Jahren als interessanter Wohn- und Lebensraum gewonnen. In der Kernstadt sind unter anderem die Stadtverwaltung, eine Außenstelle des Landkreises Anhalt-Bitterfeld, das Amtsgericht Zerbst, das Krankenhaus zu finden.
Im Einzugsbereich von Zerbst/Anhalt leben ca. 22.500 Einwohner. Kindergärten, Schulen, viele Freizeiteinrichtungen sorgen für gute Bildung und eine Vielzahl an Angeboten für ausgewogene Aktivitäten für Kinder und Jugendliche. Arbeitsplätze sind dank der solide ausgebauten Infrastruktur schnell zu erreichen.
Die Wirtschaftsstruktur wird bestimmt durch den Dienstleistungssektor, durch klein- und mittelständische Unternehmen (Handwerks- und Dienstleistungsbetriebe), durch die Land- und Forstwirtschaft sowie Unternehmen im produzierenden Bereich.
Über die nahe B 184 ist Dessau-Roßlau nach 15 km zu erreichen, Magdeburg nach 42 km, die Autobahn A2 innerhalb von 35 Minuten, die A9 nach 25 km.
Maklervertrag mit dem Kaufinteressenten zu Objekt ID WI2025/Ze-DHH 2:
Für meine Dienstleistung erlaube ich mir, dem Käufer eine Provision* in Höhe von 4,00 % des Kaufpreises (incl. MwSt.), zu berechnen.
Zu gleicher Kondition* wurde mit dem Verkäufer ein qualifizierter Alleinvertrag geschlossen.
Der Makler ist berechtigt, auch für die andere Vertragspartei entgeltlich tätig zu werden.
Das Exposé stellt ein Angebot dar.
Nach Bestätigung des Maklervertrages Objekt ID WI2025/Ze-DHH 2 (durch den Kaufinteressenten) ist möglich:
die Inanspruchnahme der Nachweis- oder Vermittlungstätigkeit
die Anforderung von weiteren Informationen
die Durchführung von Objektbesichtigungen
ggf. die Entgegennahme und Weitergabe von Verhandlungen mit dem Verkäufer oder dessen Stellvertretern
des von WILSDORF Immobilien angebotenen Objektes.
Die genaue Adresse wird Ihnen vor Besichtigungstermin mitgeteilt.
| Objekt ID: | WI2025/Ze-DHH 2 |
| Verfügbar ab: | 01.01.2026 |
| Kaufpreis: | VB 230.000 EUR |
| Provision für Käufer: | 4,00 % (incl. MwSt.) vom Kaufpreis |
| Provision für Verkäufer: | 4,00 % (incl. MwSt.) vom Kaufpreis |
| Zimmer: | 5 |
| Schlafzimmer: | 4 |
| Badezimmer: | 2 |
| Wohnfläche: | ca. 110 m² |
| Grundstücksfläche: | ca. 367,5 m² |
| Baujahr: | 2009 |
| Objektzustand: | sehr gepflegt |
| Ausstattungskategorie: | Standard |
| Carport: | mit 2 Stellplätzen ca. (B 4,00 m x L 10,20 m) |
| Schuppen: | ca. (B 3,00 m x L 3,00 m) |
| Garten, Vorgarten : | umfriedet mit Mauer und Zaun |
| Heizungsart: | zentral |
| Befeuerungsart: | Flüssiggas |
| Baujahr lt. Energieausweis: | 2009 |
| Energieeffizienzklasse: | C |
| Wert des Endenergieverbrauchs: | 86,27 kWh/(m² x a) |
| Art des Energieausweises: | Verbrauch |
| Gültigkeit des Energieausweises: | 2035 |
Grundriss / Pläne



Weitere Bilder zur Immoblilie
Doppelhaushälfte mit Garten und Carport
Ansicht Einfahrt Carport_a
Carport Geräteschuppen
EG Flur a
EG Flur
EG Küche b
EG Küche a
EG Gäste WC
EG HWR WaMa Anschluss
EG HWR Sicherungen Zähler
EG Wohnzimmer
EG Wohnzimmer überdachte Terrasse
EG WZ Blick Garten
EG Aufgang DG
DG Flur
DG Schlafzimmer 1
DG Schlafzimmer 2
DG Schlafzimmer 3
DG Bad Wanne Dusche
DG Bad Wanne Dusche a
Gas Rapido Econpact 15 Typ
Spitzboden Aufgang Stauraum
Spitzboden Zimmer Einbauschränke
Garten überdachte Terrasse
Gartenidylle a
Wilsdorf Immobilien
Adolf-Otto-Straße 30
39261 Zerbst/Anhalt
Telefon: 03923.669 11 15, Mobil: 0176/22906909
info@wilsdorf-immobilien.de
Maklervertrag mit dem Kaufinteressenten:
Mit der Bestätigung des Angebotes (Exposé und Maklervertrag) vom Kaufinteressenten (Auftraggeber) kommt der Maklervertrag mit dem Kaufinteressenten (Auftraggeber) zustande. Maklerleistungen nach Bestätigung: Durchführung von Objektbesichtigungen, Übermittlung von weiteren Informationen, auf Wunsch: Aufnahme von Verhandlungen mit dem/n Verkäufer/n oder den Stellvertretern, des von Wilsdorf Immobilien (Auftragnehmer) angebotenen Objektes, Zusendung der vorliegenden Informationen und Unterlagen an Darlehensgeber, Vorbereitung des Notartermins.
Nach Abschluss des notariellen Kaufvertrages erhält Wilsdorf Immobilien vom Käufer eine Maklerprovision, in Höhe des in diesem Exposé (für den Käufer) ausgewiesenen Prozentsatz (%) (incl. der gesetzlichen Mehrwertsteuer) vom Kaufpreis, mind. jedoch, wenn angegeben, den Mindestbetrag (€) (incl. der gesetzlichen Mehrwertsteuer). Die Provision in % errechnet sich aus dem Kaufpreis zuzüglich etwaiger weiterer Leistungen des Käufer (Auftraggeber) an den Verkäufer. Voraussetzung ist, dass die Leistungen dem Verkäufer (Zahlungsempfänger) zufließen (wie z.Bsp. Übernahme von Grundbuchlasten, Ablöse für Einrichtungen). Der Provisionsanspruch des Maklers, Wilsdorf Immobilien, wird durch eine nachträgliche Minderung des Kaufpreises nicht berührt. Die Provision ist fällig bei Abschluss des Maklervertrages und zahlbar ab Datum des Abschlusses eines notariell beurkundeten Kaufvertrages oder gleichzustellenden Vertrages, innerhalb von 14 Tagen, nach Rechnungslegung. Der Provisionanspruch des Auftragnehmers gilt auch dann, wenn der Abschluss eines Kaufvertrages erst nach Beendigung des Maklervertrages, aber ursächlich auf Grund der Tätigkeit des Auftragnehmers zustande kommt. WILSDORF IMMOBILIEN wird es gestattet, für beide Seiten (Käufer und Verkäufer) provisionspflichtig tätig zu werden. Die Besätigung der Vertragsparteien zur ursächlichen Maklertätigkeit des Auftragnehmers wird im Kaufvertrag vermerkt.
---
Rechtliche Hinweise: Unsere Immobilien werden mit einem Maklerauftrag angeboten. Alle Angaben in diesem Exposé (Objektbeschreibung, Abmessungen, Grundrisse, Preisangaben etc.) beruhen auf Angaben des Verkäufers (oder eines Dritten), sind circa-Angaben und wurden seitens Wilsdorf Immobilien nicht auf sachliche und inhaltliche Richtigkeit und Vollständigkeit überprüft. WILSDORF IMMOBILIEN überprüfte diese Angaben lediglich auf Plausibilität und übernimmt hierfür keine weitergehende Haftung. Insbesondere wurde die Baugenehmigung, das Baulastenverzeichnis nicht eingesehen und eine Kontrolle zur Angabe der Wohnfläche, Nutzfläche und zum Baujahr des Hauses hat nicht stattgefunden. Aussagen zu Teilungserklärungen können nur getroffen werden, wenn diese bei Erstellung des Exposé vorlagen. Texte, Angaben und Fotos aus diesem Exposé gehören WILSDORF IMMOBILIEN, eine Weitergabe an Dritte ist generell an die Erlaubnis dazu gebunden. Bei Zuwiderhandlung behalte/n ich/wir mir/uns Schadenersatz bis zur Höhe der Provisionsansprüche ausdrücklich vor. Zwischenverkauf ist nicht ausgeschlossen.
WILSDORF IMMOBILIEN haftet bei Vorsatz und grober Fahrlässigkeit. Im Falle einfacher Fahrlässigkeit haftet WILSDORF IMMOBILIEN nur bei Verletzung wesentlicher Rechte und Pflichten, die sich nach dem Inhalt und Zweck des Maklervertrages ergeben; in diesem Fall ist die Haftung von WILSDORF IMMOBILIEN auf den vorhersehbaren, vertragstypischen Schaden begrenzt. Diese Haftungsbeschränkungen gelten nicht für Schäden aus der Verletzung des Lebens, des Körpers oder der Gesundheit oder soweit eine Garantie übernommen wurde.

















































